• ABOUT
  • PLANS

About this property

Barn Conversion Opportunity! Set on the outskirts of the Historical Town of Amlwch with far reaching views this could be the dream home for you.

Property Description

Charming Barn Conversion with Countryside Views

Nestled in the picturesque landscape of Anglesey, this captivating barn conversion presents a unique opportunity. Offered as part of a larger complex if required, this property combines rustic charm with modern potential, with some works already completed. The barn is set on a generous plot, providing ample space for creative landscaping or further development. Its elevated position ensures breathtaking views of the surrounding countryside, offering a tranquil retreat from the hustle and bustle of everyday life. Whether you're looking to embrace sustainable living or simply enjoy the serenity of rural surroundings, this property offers a myriad of possibilities for its new owners.

Located near the historical town of Amlwch, this property benefits from the rich cultural tapestry of the area. Amlwch is renowned for its copper mining heritage and coastal port, offering a fascinating glimpse into the past. The town provides a range of amenities, including shops, primary and secondary schools, and a leisure centre, ensuring convenience for families and individuals alike. The stunning coastline and scenic walks are just a stone's throw away, inviting exploration and adventure. Whether you're drawn to the area's history, its natural beauty, or the potential for a unique lifestyle, this barn conversion is a rare find in a truly special location. Embrace the opportunity to create your dream home amidst the rolling hills and captivating vistas of Anglesey.

  • #Mountain Views
  • #Non Estate Location
  • #Off Street Parking

Interested in this property?

Thinking of Selling or Letting?

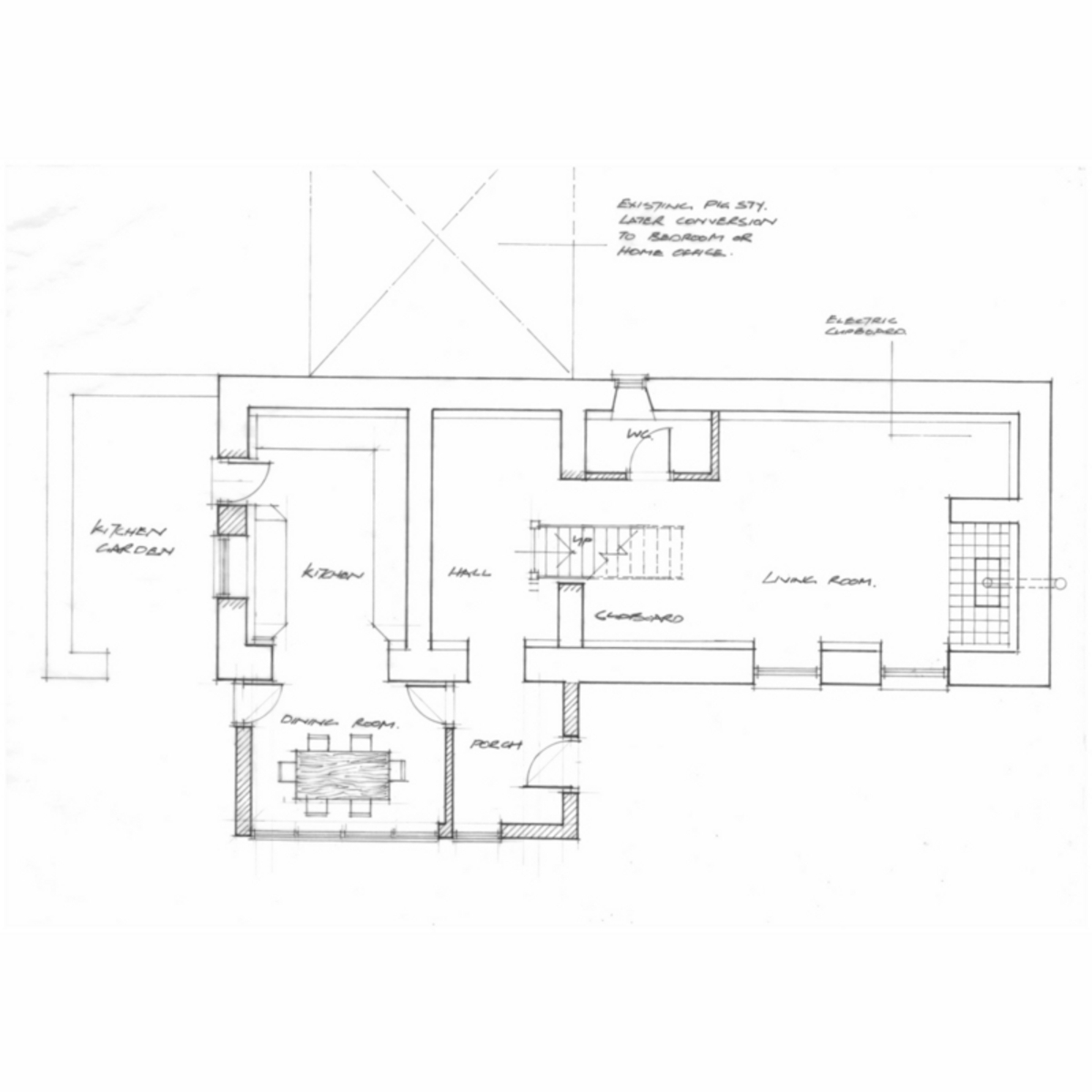
floorplan-image floorplan-image floorplan-image
Ar Werth

£175,000

Barn Conversion
  • 3
  • 2
  • 2

Pentrefelin, Amlwch, Anglesey, LL68

3 Bed Barn Conversion For Sale

About this property

Barn Conversion Opportunity! Set on the outskirts of the Historical Town of Amlwch with far reaching views this could be the dream home for you.

Property Description

Charming Barn Conversion with Countryside Views

Nestled in the picturesque landscape of Anglesey, this captivating barn conversion presents a unique opportunity. Offered as part of a larger complex if required, this property combines rustic charm with modern potential, with some works already completed. The barn is set on a generous plot, providing ample space for creative landscaping or further development. Its elevated position ensures breathtaking views of the surrounding countryside, offering a tranquil retreat from the hustle and bustle of everyday life. Whether you're looking to embrace sustainable living or simply enjoy the serenity of rural surroundings, this property offers a myriad of possibilities for its new owners.

Located near the historical town of Amlwch, this property benefits from the rich cultural tapestry of the area. Amlwch is renowned for its copper mining heritage and coastal port, offering a fascinating glimpse into the past. The town provides a range of amenities, including shops, primary and secondary schools, and a leisure centre, ensuring convenience for families and individuals alike. The stunning coastline and scenic walks are just a stone's throw away, inviting exploration and adventure. Whether you're drawn to the area's history, its natural beauty, or the potential for a unique lifestyle, this barn conversion is a rare find in a truly special location. Embrace the opportunity to create your dream home amidst the rolling hills and captivating vistas of Anglesey.

  • #Mountain Views
  • #Non Estate Location
  • #Off Street Parking

Mortgage calculator

Properties For Sale

Prisio Eiddo

"*" indicates required fields

MATH O BRISIAD*

View our privacy policy regarding website enquiries.

Arrange A Viewing

"*" indicates required fields

This field is hidden when viewing the form
Enter Your Property Address*

View our privacy policy regarding website enquiries.

This field is hidden when viewing the form

Property Enquiry

"*" indicates required fields

This field is hidden when viewing the form
This field is hidden when viewing the form

View our privacy policy regarding website enquiries.

Welsh